BUILDINGS

João Pessoa, Paraíba - Brazil

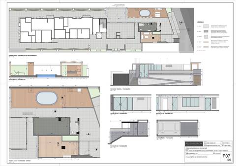
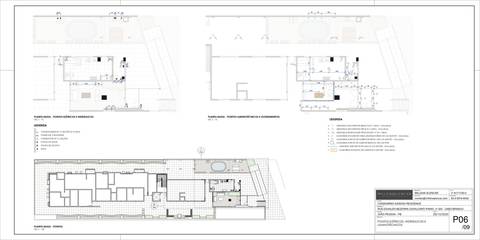
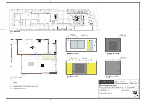
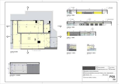
Kadosh Residence

Residential building remodelling to rebuild the main entrance and improve the recreation area, designing a new reception area, gym, living, playground, pool and gourmet area creating also privacy solutions for the ground floor apartments. 

Software: Revit (BIM) - SketchUp - Lumion


Tags

residential building remodelling recreation area gym gourmet area REVIT BIM